|
|
|
|
 |
| 产品-自动锥体络纱机- Veejay L集成的Espero |
| |
Excello, Veejay Lakshmi的创新和被证明的自动锥体络纱机是一个灵活,用户友好的机器,提高以科技目前进步水平电子和自动化为更好的表现、监控。
仿造或ribboning的包裹密度排除,控制和一致的解开物产保证交付包裹的更好质量。 毛线包裹的被改进的表现在顺流过程中多年来被证明了,做Excello一台高效率的自动锥体络纱机。 连续的改善保证低能源消耗量以最小的维修费用。
以源远流长的名誉结束三十年, Veejay Lakshmi是自动锥体络纱机唯一的制造商在印度,知道为它的例外质量在纺织品机械制造与一个强的服务与支援网络。 |
|
|
电子在Excello |
|
- 电子汇编模块设计
- 电子可靠的表现在磨房情况下
- 固定用户友好的计算机为编程参量,观看报告和故障诊断
- 多才多艺的软件为仿造的区域的排除在包裹
- 易变的速度系统为紧张控制
- 非常低压缩空气消耗量
- 减到最小的维修费用
|
| 特点 |
| 特殊性能 |
|
| 我们的R&D在它连续的努力即兴创作,提供另外的解答的服务为专门制作具体生产需要,并且提高机器的整体表现。 |
|
| 增加的末尾在除去期间 |
| Excello Doffer提供可调整的末尾长度从0.9m给最多2.5m。 当消灭,这在编织和织布机棚子增加效率末尾失踪。 |
|
| 被焊接的剪刀 |
|
更好的表现。 不要求润滑并且有长寿命。 |
|
|
电子鼓开关系统 |
|
成纺锤形马达被交换的开关在被预先决定的间隔时间为仿造的有效的减少对包裹。 在随后过程中促进毛线更好的表现。 |
|
| 方形的形状解开加速器 |
|
迅速增加大小减少的可观地由于有效的气球控制。 在解开表现和较少毛线破损的改善。 |
|
|
减少的接合的周期 |
|
周期为残破毛线接合猛烈地减到最小,因此在生产力和低机械维护的改善。 |
|
明显特点
- 优越毛线质量。
- 毛线缺点的总毛线控制和清洁由电子清除器。
- 接合由Mesdan的可靠的毛线。
- 毛线特征依然是未改变由于线性毛线道路。\
- 可调整的毛线紧张由双重部分毛线张力提供了。
- 蜡毛线偏折系统提供发行均一。
其他特点
- 优越包裹质量。
- 优秀解开物产为下来流出处理。
- 染料均一。
- 质量标准的改善。
- 优越机器质量。
- *Simple *Reliable *Thrifty *Versatile *Smart
- 具沟的绕鼓在特别铸铁以镍表面处理减少有毛并且改进鼓生活。
- 自动包裹除去。
End of Translation
- Anti-kinking device eliminates snarls and reduces to a minimum yarn waste during the joining cycle.
- Optimum energy consumption.
- High winding speed with maximum productivity.
- Effective winding speed control.
|
|
Machine Specifications |
|
|
|
|
Machine Hand |
RH / LH |
|
Number of Spindles |
60 / 64 |
|
Winding Traverse |
152 mm |
|
Grooved Drum Type |
94 / 2 Turns; 94 / 2.5 Turns |
|
Package Conicity |
3°30' / 4°20' / 5°57' |
|
Feeder Material |
100% Cotton; Polyester; Viscose; Acrylic; Wool Blends |
|
Yarn Count Range Ne |
4's - 110's |
|
Feeding Bobbin Length |
180-240 / 241-280 / 281-320 |
|
Feeding Bobbin Base (Inner) Dia. |
15-17 / 16-22 / 20-30 |
|
Package Delivery Conveyor Towards |
Tail / Headstock / Both Ends |
|
Empty Tube Conveyor Towards |
Tail / Headstock / Both Ends |
|
Empty Cone Feeding |
Individual Basket |
|
Automatic Doffer |
Single / Double |
|
Pneumatic Panel Option |
Max. 3
|
|
Splicer Type |
498Q, 4923E , 4983, 4941E
|
|
Machine split for diff. parameters |
2 / 3 |
|
Travelling Blower Type |
ELGI |
|
Clearer Type |
Uster / Loepfe / Keisokki / Premieriqon
|
|
Waxing Device |
Included |
|
Illumination |
Included
|
|
Power Requirement |
28kW (60 Spls.) |
|
Compressed Air Reqmt . |
11Cfm.(60 Spls.)
|
|
Stabilizer Capacity
|
45KVA |
|
|
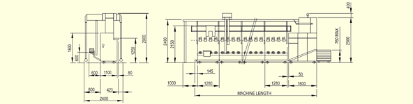
Installation Drawing |
|
 |
|
|
|
|
|
|
No. of Spindles |
Machine Length (mm) |
|
12 |
6300
|
|
16 |
7580
|
|
20 |
8860
|
|
24 |
10140
|
|
28 |
11420
|
|
32 |
12700
|
|
36 |
13980
|
|
40 |
15260
|
|
44 |
16540
|
|
48 |
17820
|
|
52 |
19100
|
|
56 |
20380
|
|
60 |
21660
|
|
64 |
23560
|
|
|
|